Location: Del Mar Terrace
Program: Single Family Residence
Size: 4,400 SF
Status: In development
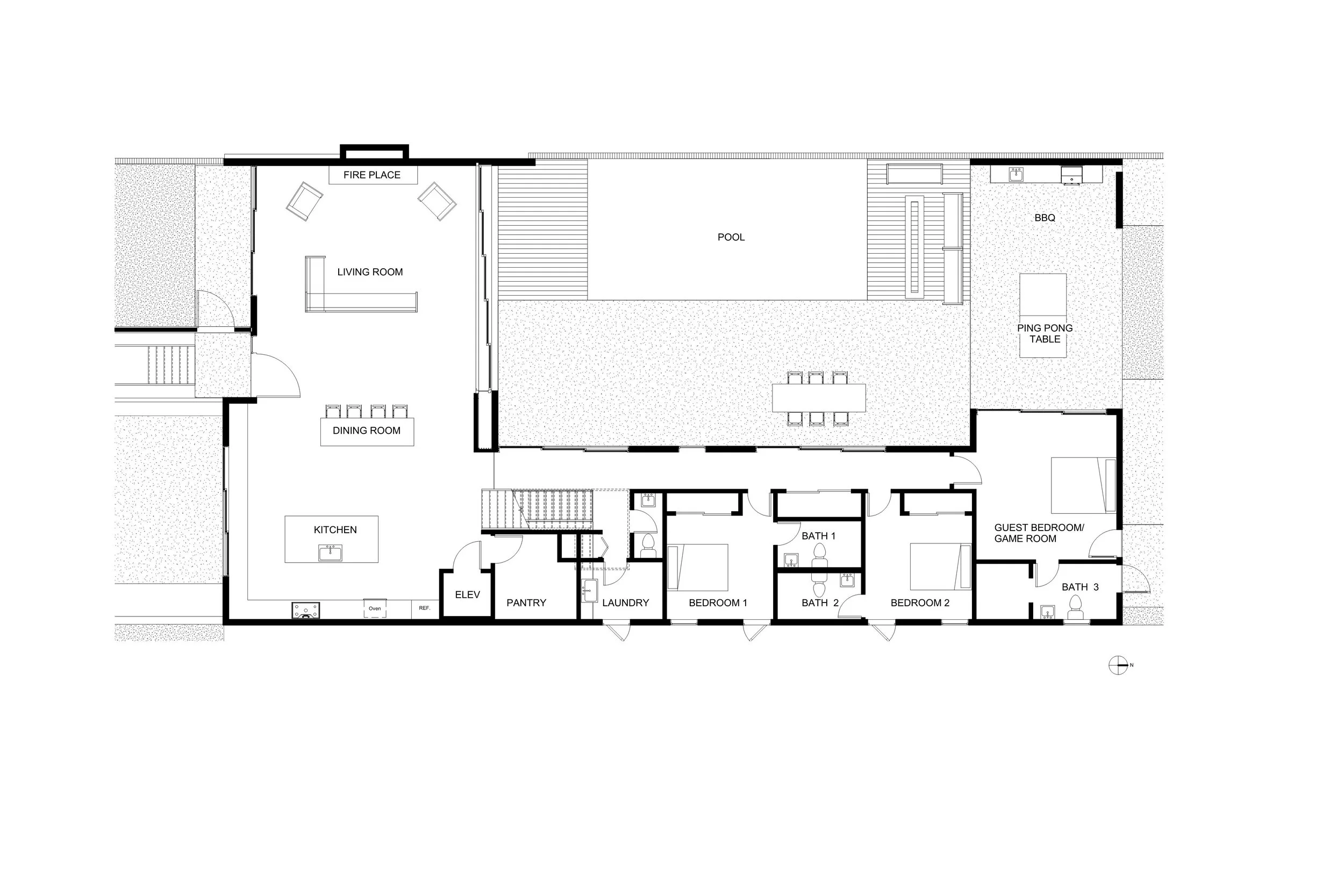
Ground level Floor Plan
Second Level Floor Plan
Garage Level Floor Plan
Location: Del Mar Terrace
Program: Single Family Residence
Size: 4,400 SF
Status: In development
Ground level Floor Plan
Second Level Floor Plan
Garage Level Floor Plan